Top.Mail.Ru

Коттедж Вектор

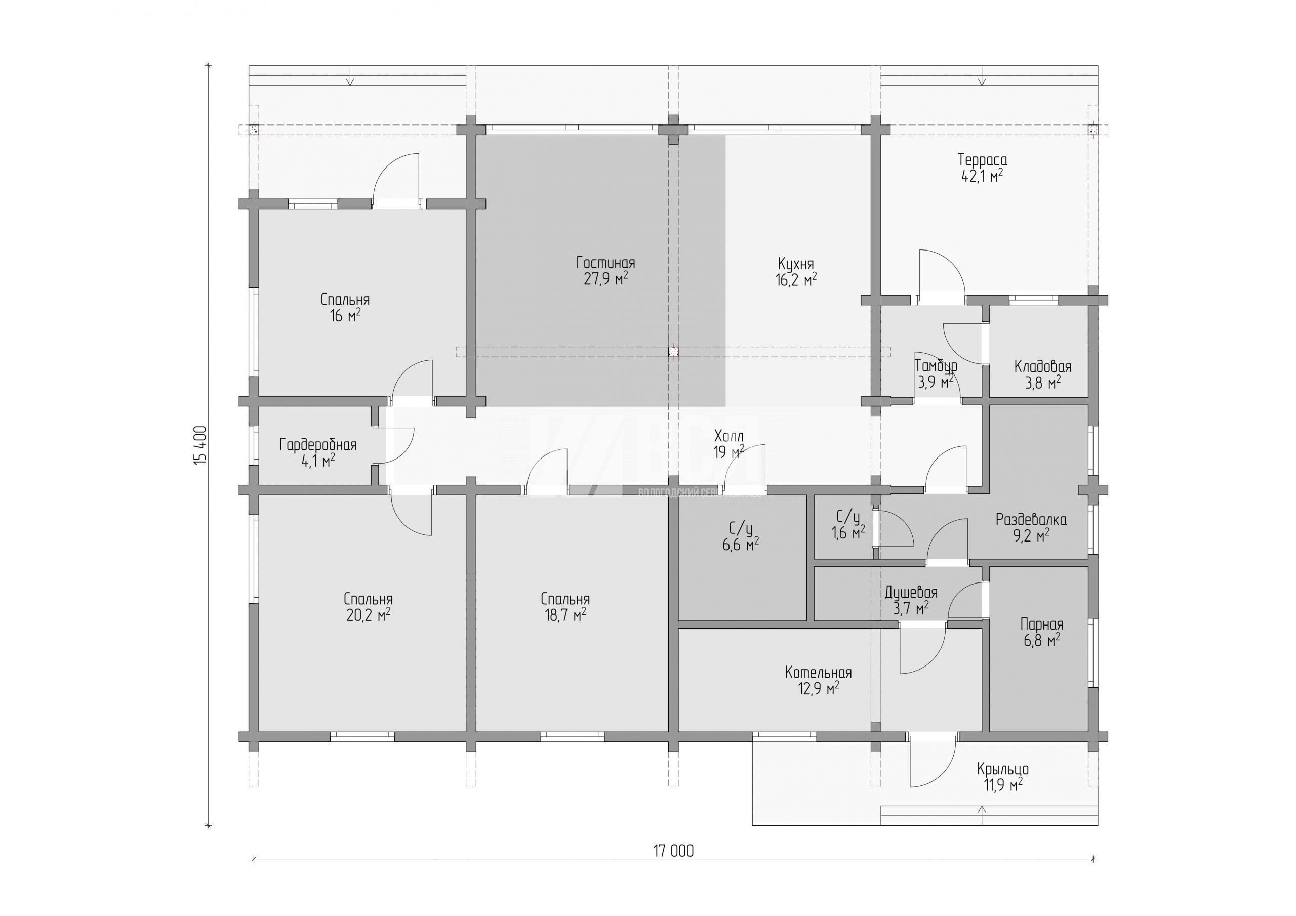
Одноэтажный коттедж из клееного бруса «Вектор» представляет собой современный и стильный дом для жильцов, ценящих простор и грамотные планировочные решения. Изюминкой проекта дома является большая гостиная с вторым светом, совмещенная с кухней-столовой. В доме имеется три больших спальни, гардеробная, кладовая, котельная, два санузла, а также собственная сауна. Этот дом из клееного бруса станет отличным загородным решением и может использоваться как для круглогодичного проживания, так и для комфортного дачного отдыха.

8 353 000 р.

План
.

Почему строить с ВСЛ — лучшее решение?

Расширенная комплектация

которая включает домокомплект со всеми необходимыми материалами и деталями для сборки, а так же вспомогательными конструкциями

«Первая» цена

Мы сами являемся заготовителями леса, поэтому гарантируем лучшую цену на древесину

Отборное качество

благодаря хранению северного леса в надлежащих условиях на производственной базе

Берем все на себя

сами решим вопросы по доставке и разгрузке сруба, в том числе на участке без подъездных путей

Только штатные специалисты

во главе с бригадиром, контролирующим ход строительства на каждом объекте

Сопровождение до сдачи

всегда на связи, готовы ответить на любые вопросы, продемонстрировать готовность и проконсультировать