Коттедж Скай
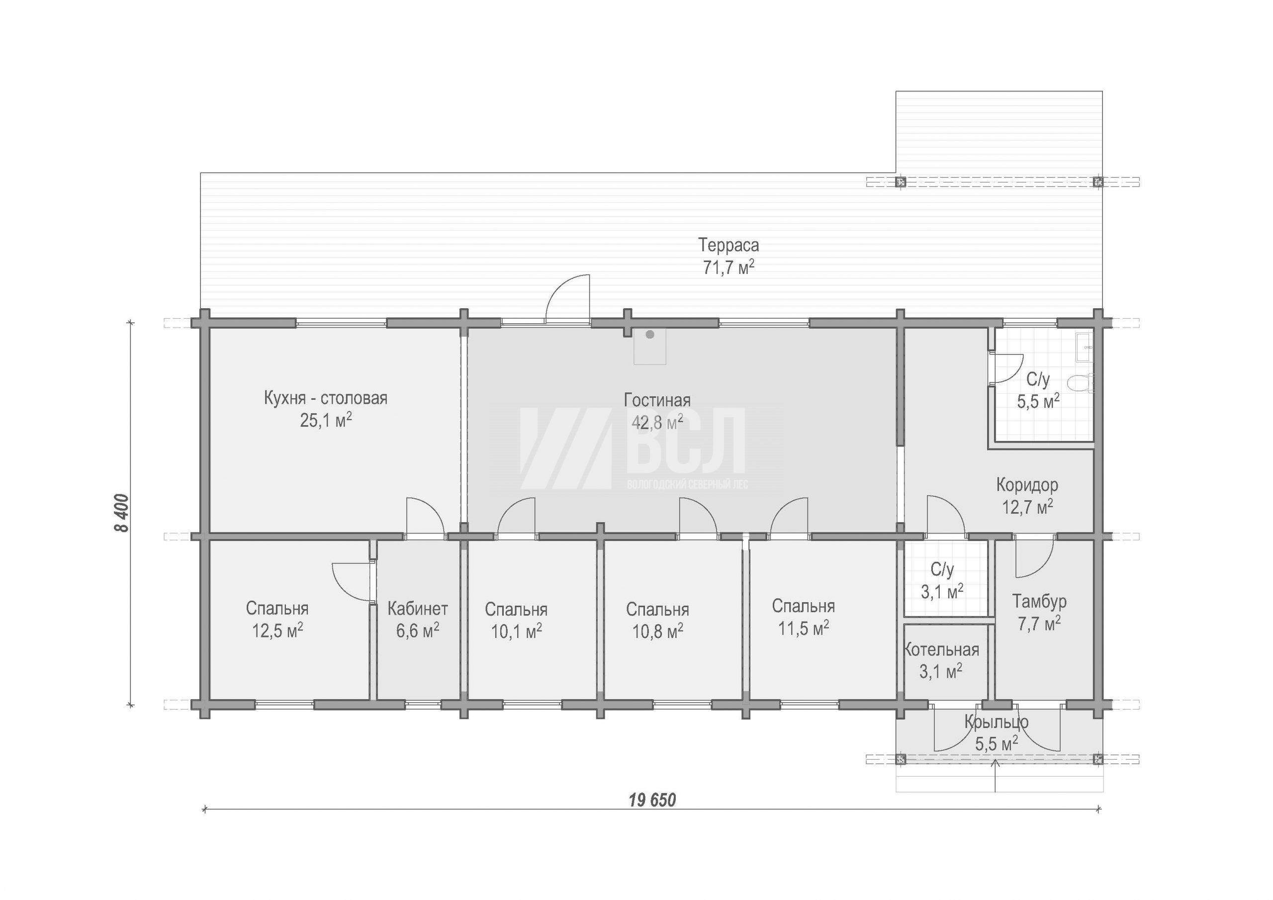
Проект коттеджа «Скай» — это большой одноэтажный дом из клееного бруса в современном стиле. Его площадь составляет более 200 кв.м., что позволяет жить с комфортом. Планировка оптимально подходит для проживания большой семьи с детьми. А проекте предусмотрена не только огромная гостиная площадью более 40 кв.м., отдельная кухня-столовая, но и целых четыре спальни. Просторная терраса также добавляет этому проекту дополнительную изюминку и функциональность. Этот одноэтажный клееный дом по своей вместительности и удобству нисколько не уступает двухэтажным аналогам такой же площади.


Почему строить с ВСЛ — лучшее решение?
Расширенная комплектация
которая включает домокомплект со всеми необходимыми материалами и деталями для сборки, а так же вспомогательными конструкциями
«Первая» цена
Мы сами являемся заготовителями леса, поэтому гарантируем лучшую цену на древесину
Отборное качество
благодаря хранению северного леса в надлежащих условиях на производственной базе
Берем все на себя
сами решим вопросы по доставке и разгрузке сруба, в том числе на участке без подъездных путей
Только штатные специалисты
во главе с бригадиром, контролирующим ход строительства на каждом объекте
Сопровождение до сдачи
всегда на связи, готовы ответить на любые вопросы, продемонстрировать готовность и проконсультировать