Коттедж Оптима
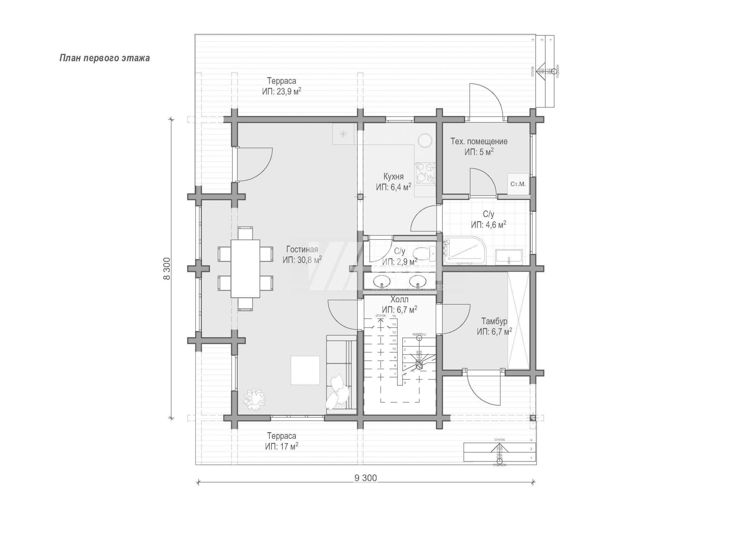
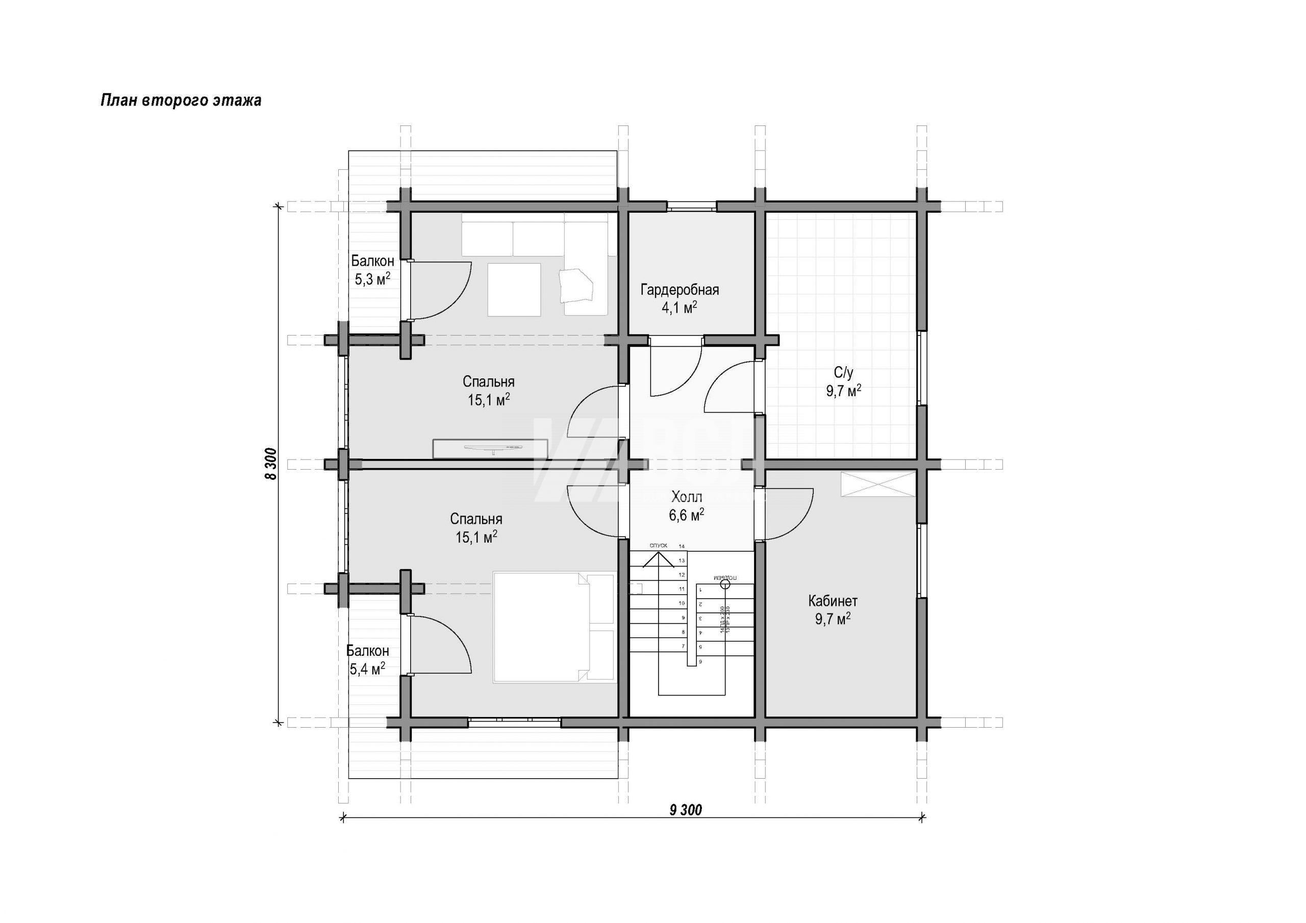
Дом из клееного бруса 170 кв.м. «Оптима» имеет продуманную планировку, в которой учтены все потребности семьи. Большую часть первого этажа занимает просторная и светлая гостиная площадью 30 кв.м., граничащая с отдельной кухней, а так же гостевой санузел. Второй этаж этого двухэтажного коттеджа из клееного бруса отдан под хозяйские спальни, отдельную гардеробную и большую ванную комнату. Также наверху располагается рабочий кабинет, который при желании можно переделать под другую функциональную зону. Снаружи дом окружен двумя открытыми террасами для отдыха на свежем воздухе.
Первый этаж

Второй этаж


Почему строить с ВСЛ — лучшее решение?
Расширенная комплектация
которая включает домокомплект со всеми необходимыми материалами и деталями для сборки, а так же вспомогательными конструкциями
«Первая» цена
Мы сами являемся заготовителями леса, поэтому гарантируем лучшую цену на древесину
Отборное качество
благодаря хранению северного леса в надлежащих условиях на производственной базе
Берем все на себя
сами решим вопросы по доставке и разгрузке сруба, в том числе на участке без подъездных путей
Только штатные специалисты
во главе с бригадиром, контролирующим ход строительства на каждом объекте
Сопровождение до сдачи
всегда на связи, готовы ответить на любые вопросы, продемонстрировать готовность и проконсультировать