Коттедж Корвус
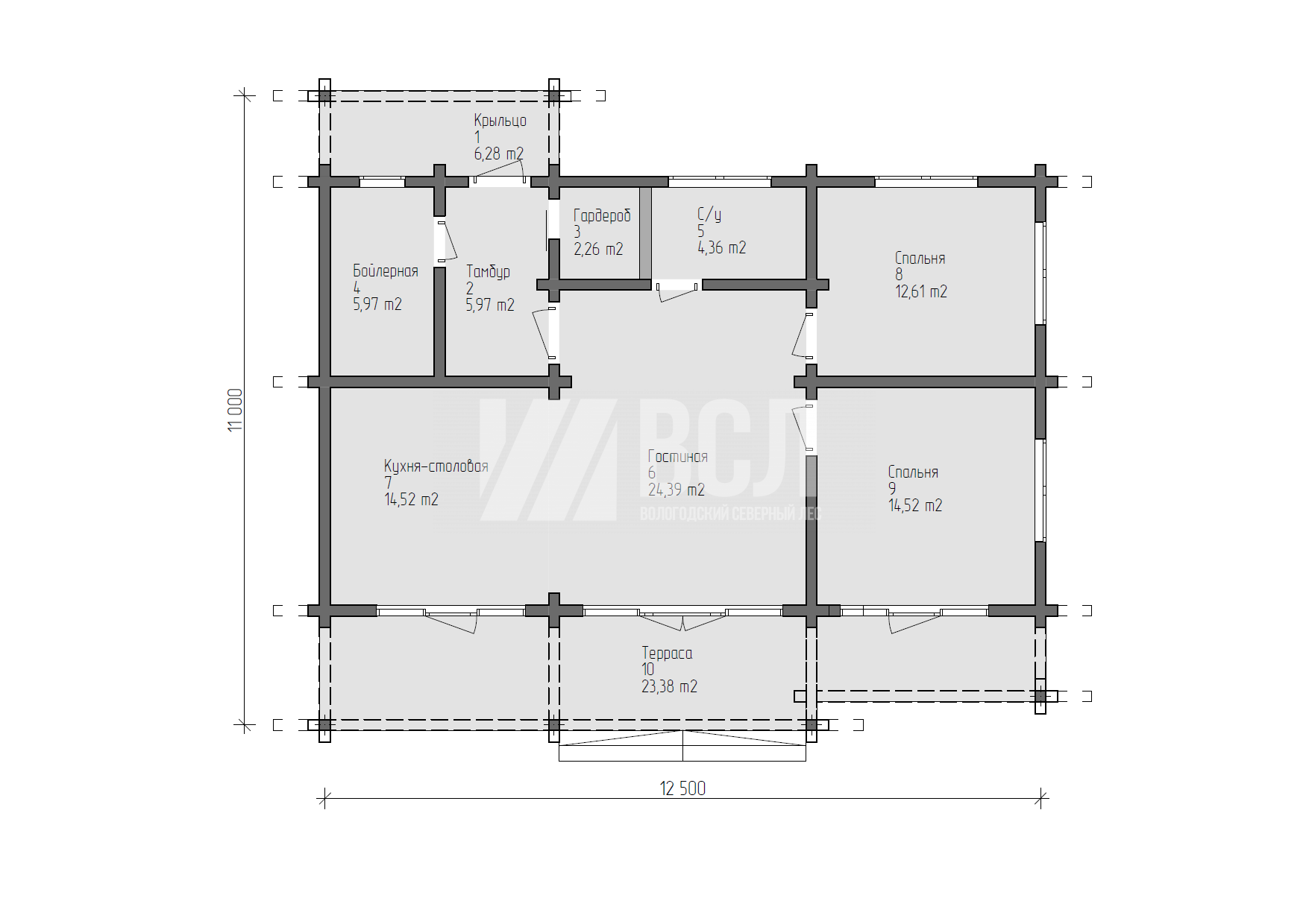
Маленький одноэтажный дом из клееного бруса для постоянного проживания – такое описание можно дать проекту «Корвус». Несмотря на скромную площадь, внутри этого малыша удалость разместить все необходимое для проживания небольшой семьи. В проекте дома предусмотрено две спальни, просторная и светлая гостиная, совмещенная с кухней-столовой. Панорамные окна в пол позволяют впустить в дом побольше естественного дневного света. В этом небольшом доме площадью всего 114 кв.м. удалось разместить даже небольшую гардеробную рядом с тамбуром. Изюминка проекта – большая накрытая крышей терраса.


Почему строить с ВСЛ — лучшее решение?
Расширенная комплектация
которая включает домокомплект со всеми необходимыми материалами и деталями для сборки, а так же вспомогательными конструкциями
«Первая» цена
Мы сами являемся заготовителями леса, поэтому гарантируем лучшую цену на древесину
Отборное качество
благодаря хранению северного леса в надлежащих условиях на производственной базе
Берем все на себя
сами решим вопросы по доставке и разгрузке сруба, в том числе на участке без подъездных путей
Только штатные специалисты
во главе с бригадиром, контролирующим ход строительства на каждом объекте
Сопровождение до сдачи
всегда на связи, готовы ответить на любые вопросы, продемонстрировать готовность и проконсультировать