+3
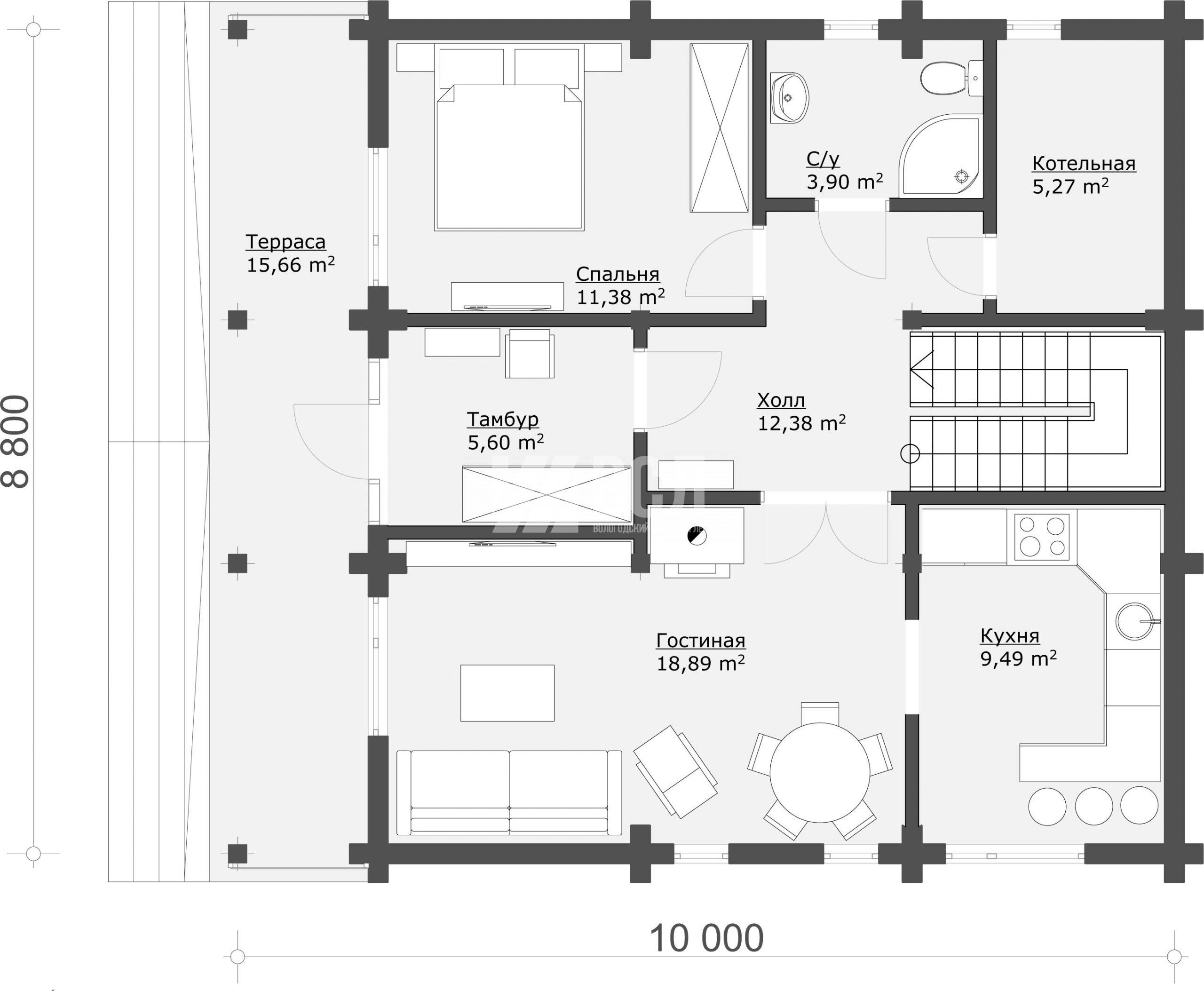
Общая площадь
156 кв.м
Габариты
8,8х10
Этажей
2
Жилых комнат
5
Коттедж Карат
7 540 000 р.


Комплектация
-
Фундамент на ЖБ сваях с металлическим оголовком
- Геодезические исследования (топосъемка участка)
- Проект КЖ
- Привязка осей по местности
- Приёмка инженером технического надзора
-
Стеновой комплект: Клееный брус 160х190 мм
- Рабочий проект КД
- Брусовая обвязка ЖБ фундамента
- Брус клееный стеновой 160х190. немецкий профиль
- Балки перекрытия
- Комплектующие, крепеж, метизы, расходные материалы
- Доставка домокомплекта
- Сборка домокомплекта, монтаж кровли
- Черновой пол
- Приёмка инженером технического надзора
-
Кровля: металлочерепица Grand Line
- Рабочий проект кровли КД
- Стропила
- Утепление 200 мм, Rockwool
- Паро - гидроизоляционная мембрана
- Комплектующие, расходные материалы
- Доставка
- Приёмка инженером технического надзора
-
Окна Rehau и двери
- Обсада сухая строганная утепленная
- ПВХ-профиль 70 мм, Рехау, фурнитура Roto
- Входная дверь с терморазрывом
- Комплектующие, расходные материалы
- Приёмка инженером технического надзора
-
Сопровождение строительства
- Организация проживания рабочих
- Вывоз мусора

Почему строить с ВСЛ — лучшее решение?
Расширенная комплектация
которая включает домокомплект со всеми необходимыми материалами и деталями для сборки, а так же вспомогательными конструкциями
«Первая» цена
Мы сами являемся заготовителями леса, поэтому гарантируем лучшую цену на древесину
Отборное качество
благодаря хранению северного леса в надлежащих условиях на производственной базе
Берем все на себя
сами решим вопросы по доставке и разгрузке сруба, в том числе на участке без подъездных путей
Только штатные специалисты
во главе с бригадиром, контролирующим ход строительства на каждом объекте
Сопровождение до сдачи
всегда на связи, готовы ответить на любые вопросы, продемонстрировать готовность и проконсультировать