Баня Дерута
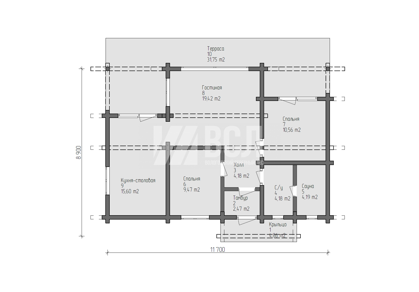
Одноэтажная баня из клееного бруса «Дерута» — это просторное и комфортное место для отдыха большой семьей или компанией. Баня площадью больше 100 кв.м. имеет парилку с выходом в санузел, кухню-столовую, гостиную и две спальни. Открытая терраса позволяет наслаждаться свежим воздухом после водных процедур в любую погоду. Планировка данной бани настолько комфортна и продумана, что позволяет взять её за основу для строительства небольшого коттеджа из клееного бруса. Проект выполнен в современном стиле и удачно впишется даже на небольшой земельный участок.
Первый этаж


Почему строить с ВСЛ — лучшее решение?
Расширенная комплектация
которая включает домокомплект со всеми необходимыми материалами и деталями для сборки, а так же вспомогательными конструкциями
«Первая» цена
Мы сами являемся заготовителями леса, поэтому гарантируем лучшую цену на древесину
Отборное качество
благодаря хранению северного леса в надлежащих условиях на производственной базе
Берем все на себя
сами решим вопросы по доставке и разгрузке сруба, в том числе на участке без подъездных путей
Только штатные специалисты
во главе с бригадиром, контролирующим ход строительства на каждом объекте
Сопровождение до сдачи
всегда на связи, готовы ответить на любые вопросы, продемонстрировать готовность и проконсультировать