Баня Лакка
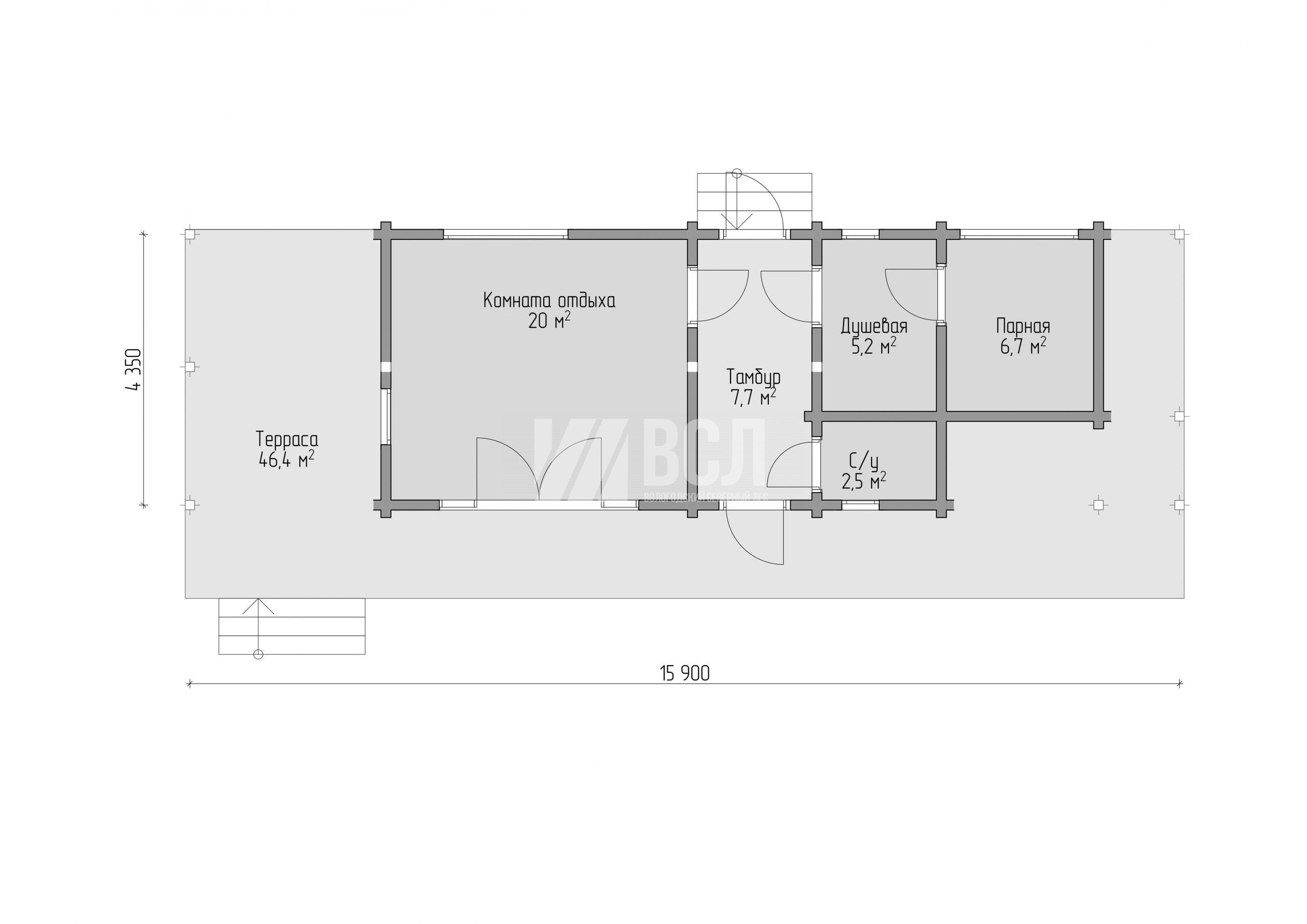
Одноэтажная баня из клееного бруса «Лакка» — это просторная и комфортная баня в современном стиле. В ней есть всё, что нужно для хорошего отдыха – удобная душевая, парная и большая вместительная комната отдыха. Дополнительное преимущество этого проекта бани из клееного бруса – большая, частично закрытая навесом терраса, на которой можно уютно расположиться в любую погоду.
Планировки


Почему строить с ВСЛ — лучшее решение?
Расширенная комплектация
которая включает домокомплект со всеми необходимыми материалами и деталями для сборки, а так же вспомогательными конструкциями
«Первая» цена
Мы сами являемся заготовителями леса, поэтому гарантируем лучшую цену на древесину
Отборное качество
благодаря хранению северного леса в надлежащих условиях на производственной базе
Берем все на себя
сами решим вопросы по доставке и разгрузке сруба, в том числе на участке без подъездных путей
Только штатные специалисты
во главе с бригадиром, контролирующим ход строительства на каждом объекте
Сопровождение до сдачи
всегда на связи, готовы ответить на любые вопросы, продемонстрировать готовность и проконсультировать